NEW

横浜市金沢区釜利谷東4丁目 新築戸建て【仲介手数料無料】カースペース3台

5,990万円

神奈川県横浜市金沢区釜利谷東4丁目

京急本線「金沢文庫」駅バス10分「釜利谷高校」停歩9分

価格
5,990万円
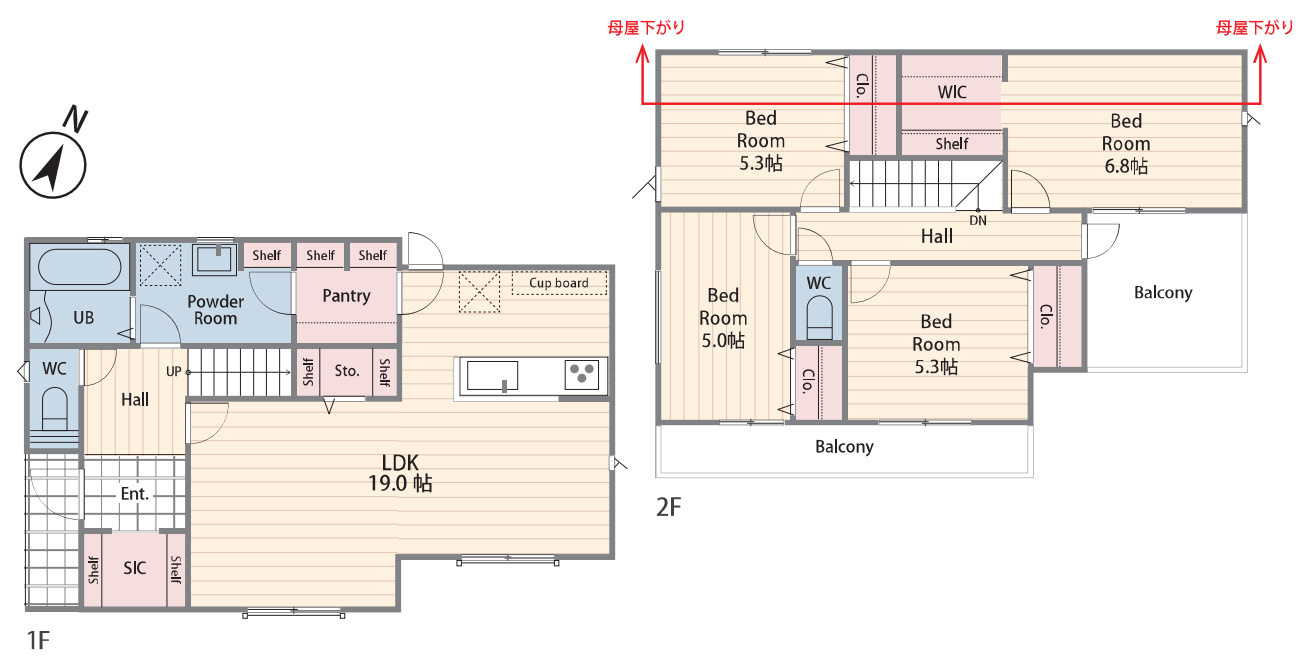
間取り
4LDK
土地面積
198.61㎡
所在地
神奈川県横浜市金沢区釜利谷東4丁目
交通

京急本線金沢文庫」駅 バス10分 「釜利谷高校」 停歩9分

建物面積
109.30㎡
築年月
2025年11月(予定)

物件の特徴

  • バストイレ別

  • 室内洗濯機置場

  • TVモニタ付きインターホン

  • カウンターキッチン

  • 浴室乾燥機

セールスポイント

★仲介手数料無料★幅広い層の方に好評の、5,990万円台の物件です。日常生活で利用頻度の高い水回りだからこそ、使い勝手のいいシステムキッチンを選んでみませんか。来訪者を確認できる、TVインターホン付きです。開放感のある間取りの4LDK物件です。ご希望に沿った一戸建てをご紹介致します。横浜市金沢区の京急本線金沢文庫付近でマイホームの購入をお考えなら、お気軽にお問い合わせください。

ポイント

浴室乾燥機 照明器具付き 追焚機能浴室 ファミリー向け 仲介手数料無料

担当者のコメント

渡邊 智也

横浜で仲介手数料無料の戸建て・マンション・土地を探すならつるハウスへ!横浜市金沢区釜利谷東4丁目 新築戸建て【仲介手数料無料】カースペース3台:京急本線金沢文庫駅にも近くて便利。通学区域内の小学校は横浜市立能見台南小学校で徒歩11分です。バルコニーが付いています。浴室乾燥機付きの物件は、浴室乾燥機のスイッチを入れればすぐに湿気を除去できるためカビや雑菌などの発生が抑えられます。不動産をお探しなら、当社をご用命ください。あなたのこだわりの条件に合った不動産がきっと見つかります。ぜひご検討くださいませ。横浜で住みよい環境を求めている方は、つるハウスにお任せください。たくさんの不動産の中から、お客様に合った戸建て・マンション・土地をご紹介いたします。

基本情報

販売戸数
-
総戸数
-
間取り / 詳細
4LDK
向き
-
建物面積(坪数)
109.30㎡(33.06坪)
土地面積(坪数)
198.61㎡(60.07坪)
建ぺい率 /
容積率
50%/80%
築年月
2025年11月(予定)
駐車場 /
月額料金
有(3台) -
土地権利
所有権
土地
(敷金 / 保証金)
- / -
建物構造
木造 / 2階建
傾斜地部分面積
-
路地状敷地
-
私道負担面積
-
セットバック
-
高圧線下面積
-
施工会社
-
用途地域
第一種低層住居専用
地目 / 地勢
- / -
接道状況
一方(南西 6.4m)
国土法届出要否
不要
都市計画
市街化区域
総区画数 /
販売区画数
-/-
現況
未完成
その他
法令上の制限
-
取引態様
仲介
引渡し
相談
取引条件の
有効期限
2025年11月18日

設備条件

設備条件
  • 新婚さん向け / ファミリー向け / キャンペーン / 仲介手数料無料 / 室内洗濯機置場 / フローリング / バルコニー / 都市ガス / 公営水道 / 公共下水 / 24時間換気システム / 電気有 / 照明器具付き / 駐車2台可 / 食器洗い乾燥機 / システムキッチン / カウンターキッチン / バス・トイレ別 / 追焚機能浴室 / 浴室乾燥機 / 洗面台 / トイレ2ヶ所 / ウォークインクロゼット / ウォークインシューズクロゼット / 食品庫 / TVモニタ付インターホン
設備(その他)
    -

その他

物件番号
98822803
管理コード
-
建築確認番号
第2025SBC-確00370Y号
情報更新日
2025年11月07日
次回更新予定日
2025年11月18日
備考
横浜で仲介手数料無料の戸建て・マンション・土地を探すならつるハウスへ!

~仲介手数料最大無料 現地ご見学会~
★つるハウスでは高額な「仲介手数料」が無料で対応可能です!仲介手数料について詳しくご説明いたします!
■無料で物件現地をご覧いただき、率直なご感想をいただいております。
■最寄駅や、スーパー、公園、学校等の周辺の施設をお車or徒歩にてご案内させて頂きます。
■未完成の現場であれば、モデルハウスを手配させていただき、ご覧いただけます。
■周辺の販売情報や、過去の成約情報等を基に、比較検討をしていただいております。

~住宅ローンFPコンサルティング~
「変動金利」「固定金利」どちらが良い?
賢い住宅ローンの選び方!
【借入時~10年後~定年時~完済】までの残債額を見ながらのシミュレーション♪
万が一売却する際に損をしない物件選び!?
住宅ローンって払い終えたら実際の総額は??
定年後の返済計画のご提案!!
的確な繰り上げ返済のタイミングと方法とは?
住宅ローン以外のランニングコストを踏まえた上での安心のご予算は?等々。
お客様それぞれの状況をカウンセリングしてご提案させていただいております!
お気軽にお申し付けくださいませ!

※「家が近くなので現地集合が良い」「お自宅までの送迎」⇒対応可能です!!
※「取り急ぎ資料だけ欲しい」のような資料請求だけでも大歓迎です!!

★仲介手数料最大無料のつるハウスでは住宅ローンに関する「漠然とした見えない不安」「将来不安」「定年後の返済計画」等々、多種多様な不安の「見える化」をさせていただいております!是非お気軽にお申し付け下さい!
詳しくは下記「問い合わせをする」「新規会員登録」ボタンよりお気軽にお問い合わせください。

横浜で住みよい環境を求めている方は、つるハウスにお任せください。たくさんの不動産の中から、お客様に合った戸建て・マンション・土地をご紹介いたします。

周辺施設

  • 阿王ケ台公園の画像

    公園

    阿王ケ台公園

    626m(8分)

  • 横浜市立能見台南小学校の画像

    小学校

    横浜市立能見台南小学校

    877m(11分)

  • セブンイレブン 横浜釜利谷東3丁目店の画像

    コンビニエンスストア

    セブンイレブン 横浜釜利谷東3丁目店

    936m(12分)

  • セブンイレブン 横浜釜利谷東3丁目店の画像

    コンビニエンスストア

    セブンイレブン 横浜釜利谷東3丁目店

    936m(12分)

  • くるみ薬局の画像

    ドラッグストア

    くるみ薬局

    971m(13分)

  • ユーコープ 釜利谷店の画像

    スーパー

    ユーコープ 釜利谷店

    1071m(14分)

  • ユーコープ 釜利谷店の画像

    スーパー

    ユーコープ 釜利谷店

    1071m(14分)

  • ホームセンター NEW(ニュー)トンカチの画像

    ホームセンター

    ホームセンター NEW(ニュー)トンカチ

    1077m(14分)

  • ホームセンターNEWトンカチの画像

    ホームセンター

    ホームセンターNEWトンカチ

    1079m(14分)

  • ローソン 横浜釜利谷東五丁目店の画像

    コンビニエンスストア

    ローソン 横浜釜利谷東五丁目店

    1097m(14分)

  • みらい薬局文庫店の画像

    ドラッグストア

    みらい薬局文庫店

    1144m(15分)

  • ガスト 釜利谷店(から好し取扱店)の画像

    ファミリーレストラン

    ガスト 釜利谷店(から好し取扱店)

    1146m(15分)

  • ビッグボーイ 釜利谷店の画像

    ファミリーレストラン

    ビッグボーイ 釜利谷店

    1151m(15分)

  • 清水薬局の画像

    ドラッグストア

    清水薬局

    1180m(15分)

  • サイゼリヤ 金沢文庫店の画像

    ファミリーレストラン

    サイゼリヤ 金沢文庫店

    1212m(16分)

  • 釜利谷ひろば公園の画像

    公園

    釜利谷ひろば公園

    1226m(16分)

  • 全日食チェーン 川端屋の画像

    スーパー

    全日食チェーン 川端屋

    1581m(20分)

  • 横浜市立金沢中学校の画像

    中学校

    横浜市立金沢中学校

    1687m(22分)

支払いシミュレーション

月々の支払額
9.6
購入希望物件価格
万円
頭金
万円
金利
%
返済額(ボーナス1回分)
万円
返済期間

※ボーナスは自動で年2回分で計算されます。

近隣の物件

  1. 横浜市金沢区西柴2丁目 新築戸建て【仲介手数料無料】

    横浜市金沢区西柴2丁目

    4LDK (109.52㎡)

    4,760万円

  2. 横浜市金沢区六浦5丁目 新築戸建て【仲介手数料無料】

    横浜市金沢区六浦5丁目

    2SLDK (90.00㎡)

    4,680万円

  3. 横浜市金沢区寺前2丁目 新築戸建て【仲介手数料無料】カースペース2台

    横浜市金沢区寺前2丁目

    4LDK (107.85㎡)

    5,890万円

  4. 横浜市金沢区釜利谷西5丁目 新築戸建て【仲介手数料無料】カースペース2台

    横浜市金沢区釜利谷西5丁目

    4LDK (113.24㎡)

    6,680万円

横浜市金沢区釜利谷東4丁目 新築戸建て【仲介手数料無料】カースペース3台

横浜市金沢区釜利谷東4丁目 新築戸建て【仲介手数料無料】カースペース3台

5,990万円

-

4LDK(109.30㎡)

お気軽にお問い合わせください

LINEからお問い合わせ 無料お問い合わせ

つるハウス(不動産売買・賃貸・仲介・管理)

045-777-2133

10:00~20:00

(休:水曜日)