NEW

横浜市中区竹之丸 中古戸建て【仲介手数料無料】

8,280万円

神奈川県横浜市中区竹之丸

京浜東北線「山手」駅徒歩7分

価格
8,280万円
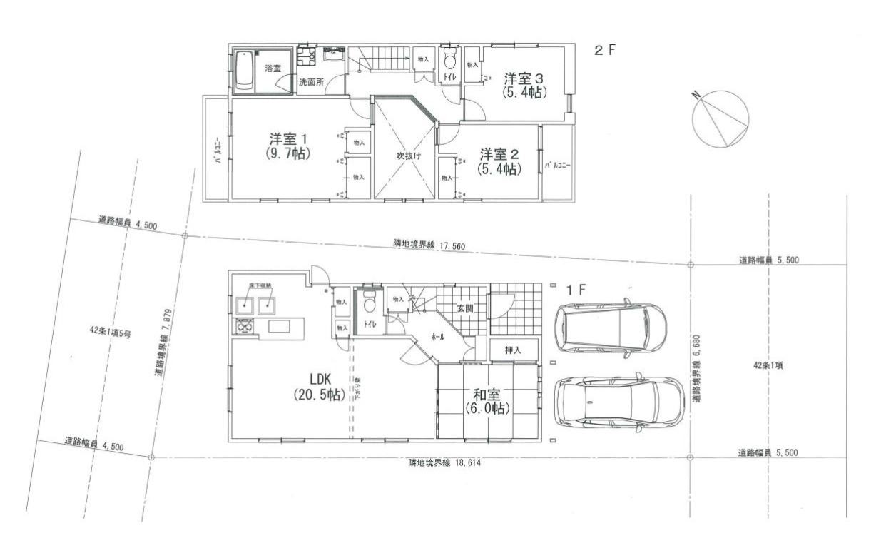
間取り
4LDK
土地面積
131.15㎡
所在地
神奈川県横浜市中区竹之丸
交通

京浜東北線山手」駅 徒歩7分

建物面積
111.79㎡
築年月
2007年10月(築18年)

物件の特徴

  • バストイレ別

  • 室内洗濯機置場

  • TVモニタ付きインターホン

  • カウンターキッチン

  • 浴室乾燥機

セールスポイント

★仲介手数料無料★こだわりポイント満載の横浜市中区竹之丸 中古戸建て【仲介手数料無料】。竹の丸公園まで391mです。111.79平米程の建物面積でスペースも十分。もとからエアコンが付いていますので、快適な室温にすることができます。住み良い環境が整った横浜市中区で一戸建てをお求めなら、当社にお任せください。詳細情報などにつきましては、お気軽にお問い合わせください。

ポイント

エアコン ファミリー向け 仲介手数料無料 キャンペーン 対面式キッチン

担当者のコメント

渡邊 智也

横浜で仲介手数料無料の戸建て・マンション・土地を探すならつるハウスへ!横浜市中区竹之丸 中古戸建て【仲介手数料無料】:京浜東北線山手駅にも近くて便利。竹の丸公園まで391mです。中古の戸建て物件は便利な価格が魅力の1つです。111.79㎡の建物面積でゆったりと暮らすことができる物件です。毎日の生活が充実できるよう、お客様の住まい探しをお手伝いいたします。こだわりのエリアや条件などございましたら、お気軽に当社へお問い合わせ下さい。横浜で住みよい環境を求めている方は、つるハウスにお任せください。たくさんの不動産の中から、お客様に合った戸建て・マンション・土地をご紹介いたします。

基本情報

販売戸数
-
総戸数
-
間取り / 詳細
4LDK
向き
-
建物面積(坪数)
111.79㎡(33.81坪)
土地面積(坪数)
131.15㎡(39.67坪)
建ぺい率 /
容積率
50%/100%
築年月
2007年10月(築18年)
駐車場 /
月額料金
有(2台) -
土地権利
所有権
土地
(敷金 / 保証金)
- / -
建物構造
木造 / 2階建
傾斜地部分面積
-
路地状敷地
-
私道負担面積
-
セットバック
-
高圧線下面積
-
施工会社
-
用途地域
第一種低層住居専用
地目 / 地勢
- / -
接道状況
二方
国土法届出要否
不要
都市計画
市街化区域
総区画数 /
販売区画数
-/-
現況
空家
その他
法令上の制限
-
取引態様
仲介
引渡し
即時
取引条件の
有効期限
2025年11月16日

設備条件

設備条件
  • 新婚さん向け / ファミリー向け / キャンペーン / 仲介手数料無料 / 室内洗濯機置場 / フローリング / バルコニー / 都市ガス / 公営水道 / 公共下水 / 電気有 / 照明器具付き / 駐車2台可 / 食器洗い乾燥機 / システムキッチン / カウンターキッチン / バス・トイレ別 / 追焚機能浴室 / 浴室乾燥機 / 洗面台 / トイレ2ヶ所 / エアコン / 床暖房 / TVモニタ付インターホン
設備(その他)
    -

その他

物件番号
98384404
管理コード
-
建築確認番号
-
情報更新日
2025年11月07日
次回更新予定日
2025年11月16日
備考
横浜で仲介手数料無料の戸建て・マンション・土地を探すならつるハウスへ!

~仲介手数料最大無料 現地ご見学会~
★つるハウスでは高額な「仲介手数料」が無料で対応可能です!仲介手数料について詳しくご説明いたします!
■無料で物件現地をご覧いただき、率直なご感想をいただいております。
■最寄駅や、スーパー、公園、学校等の周辺の施設をお車or徒歩にてご案内させて頂きます。
■未完成の現場であれば、モデルハウスを手配させていただき、ご覧いただけます。
■周辺の販売情報や、過去の成約情報等を基に、比較検討をしていただいております。

~住宅ローンFPコンサルティング~
「変動金利」「固定金利」どちらが良い?
賢い住宅ローンの選び方!
【借入時~10年後~定年時~完済】までの残債額を見ながらのシミュレーション♪
万が一売却する際に損をしない物件選び!?
住宅ローンって払い終えたら実際の総額は??
定年後の返済計画のご提案!!
的確な繰り上げ返済のタイミングと方法とは?
住宅ローン以外のランニングコストを踏まえた上での安心のご予算は?等々。
お客様それぞれの状況をカウンセリングしてご提案させていただいております!
お気軽にお申し付けくださいませ!

※「家が近くなので現地集合が良い」「お自宅までの送迎」⇒対応可能です!!
※「取り急ぎ資料だけ欲しい」のような資料請求だけでも大歓迎です!!

★仲介手数料最大無料のつるハウスでは住宅ローンに関する「漠然とした見えない不安」「将来不安」「定年後の返済計画」等々、多種多様な不安の「見える化」をさせていただいております!是非お気軽にお申し付け下さい!
詳しくは下記「問い合わせをする」「新規会員登録」ボタンよりお気軽にお問い合わせください。

横浜で住みよい環境を求めている方は、つるハウスにお任せください。たくさんの不動産の中から、お客様に合った戸建て・マンション・土地をご紹介いたします。

周辺施設

  • 竹の丸公園の画像

    公園

    竹の丸公園

    391m(5分)

  • 柏葉公園の画像

    公園

    柏葉公園

    411m(6分)

  • 横浜市立立野小学校の画像

    小学校

    横浜市立立野小学校

    487m(7分)

  • セブンイレブン 横浜山手駅前店の画像

    コンビニエンスストア

    セブンイレブン 横浜山手駅前店

    574m(8分)

  • プチマルシェフジ山元町店の画像

    スーパー

    プチマルシェフジ山元町店

    601m(8分)

  • SUPER MARKET FUJI(スーパーマーケットフジ) プチマルシェ フジ 山元町店の画像

    スーパー

    SUPER MARKET FUJI(スーパーマーケットフジ) プチマルシェ フジ 山元町店

    602m(8分)

  • TRATTORIA BAL TETTO(トラットリア バル テット)の画像

    イタリア料理

    TRATTORIA BAL TETTO(トラットリア バル テット)

    617m(8分)

  • ローソン 山元町一丁目店の画像

    コンビニエンスストア

    ローソン 山元町一丁目店

    628m(8分)

  • 横浜市立仲尾台中学校の画像

    中学校

    横浜市立仲尾台中学校

    639m(8分)

  • ニューデイズ山手の画像

    コンビニエンスストア

    ニューデイズ山手

    644m(9分)

  • マイファーマシーの画像

    ドラッグストア

    マイファーマシー

    646m(9分)

  • れいわ薬局の画像

    ドラッグストア

    れいわ薬局

    661m(9分)

  • ホットポットの画像

    喫茶店・カフェ

    ホットポット

    681m(9分)

  • トップパルケ 山手店の画像

    スーパー

    トップパルケ 山手店

    703m(9分)

  • トップパルケ山手店の画像

    スーパー

    トップパルケ山手店

    707m(9分)

  • 三和薬局の画像

    ドラッグストア

    三和薬局

    731m(10分)

  • ブラフテラスの画像

    喫茶店・カフェ

    ブラフテラス

    883m(12分)

  • エレーナの画像

    喫茶店・カフェ

    エレーナ

    1208m(16分)

支払いシミュレーション

月々の支払額
9.6
購入希望物件価格
万円
頭金
万円
金利
%
返済額(ボーナス1回分)
万円
返済期間

※ボーナスは自動で年2回分で計算されます。

横浜市中区竹之丸 中古戸建て【仲介手数料無料】

横浜市中区竹之丸 中古戸建て【仲介手数料無料】

8,280万円

-

4LDK(111.79㎡)

お気軽にお問い合わせください

LINEからお問い合わせ 無料お問い合わせ

つるハウス(不動産売買・賃貸・仲介・管理)

045-777-2133

10:00~20:00

(休:水曜日)