グランシティ保土ヶ谷【仲介手数料無料】ペット可♪

3,499万円

神奈川県横浜市保土ケ谷区権太坂1丁目2-12

横須賀線「保土ケ谷」駅バス9分「元町橋交番前」停歩2分

価格
3,499万円
間取り/面積
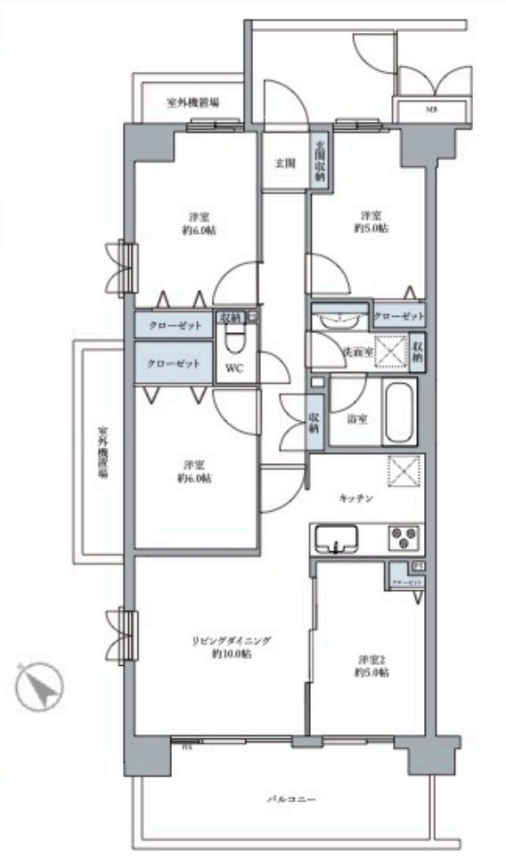
3LDK/76.25㎡
所在地
神奈川県横浜市保土ケ谷区権太坂1丁目2-12
築年
2004年7月(築21年)
駐車
空有(1台)
交通

横須賀線保土ケ谷」駅 バス9分 「元町橋交番前」 停歩2分

グランシティ保土ヶ谷【仲介手数料無料】ペット可♪の基本情報

物件名
グランシティ保土ヶ谷【仲介手数料無料】ペット可♪
価格
3,499万円
築年月
2004年7月(築21年)
総戸数
81戸
所在地
神奈川県横浜市保土ケ谷区権太坂1丁目2-12
交通

横須賀線保土ケ谷」駅 バス9分 「元町橋交番前」 停歩2分

グランシティ保土ヶ谷【仲介手数料無料】ペット可♪の詳細情報

設備条件
  • エレベーター
  • オートロック
設備(その他)
    -
駐車場/月額
空有(1台)/ 無償
土地権利
所有権
国土法届出
不要
用途地域
-
戸数
81戸 / 1戸
管理形態
管理会社に全部委託
管理員の勤務形態
日勤
管理会社
大和地所コミュニティライフ
取引態様
仲介
引渡し
即時
備考
徒歩8分の場所に横浜市立権太坂小学校があります。こちらの物件にはエレベーターが付いています。多くの方に好評な、清潔感のある室内が魅力の中古マンションです。不動産の購入を検討しているなら、不動産会社をしっかりと選んで下さい。信頼と実績のある不動産会社を選ぶことで、不動産購入を成功させることに繋がります。

グランシティ保土ヶ谷【仲介手数料無料】ペット可♪のコメント(おすすめポイント)

グランシティ保土ヶ谷【仲介手数料無料】ペット可♪:横須賀線保土ケ谷駅にも近くて便利。徒歩8分の場所に横浜市立権太坂小学校があります。エレベーター付きの物件です。住んでいて心地の良い中古マンションで魅力的です。人生で一度あるかないかの不動産購入で、失敗なんてしたら取り返しが付かないですよね。そんなことがないように、当社の経験豊富なスタッフがしっかりとサポート致します。

グランシティ保土ヶ谷【仲介手数料無料】ペット可♪で募集中の物件

  1. 101号室(1階部分)

    23.06坪 (76.25㎡)

    3,499万円(151.73万円/坪)

周辺施設

  • セブンイレブン 保土ケ谷元町橋店の画像

    コンビニエンスストア

    セブンイレブン 保土ケ谷元町橋店

    176m(3分)

  • MEGAドン・キホーテ狩場インター店の画像

    ディスカウントショップ

    MEGAドン・キホーテ狩場インター店

    382m(5分)

  • ファミリーマート 横浜狩場町店の画像

    コンビニエンスストア

    ファミリーマート 横浜狩場町店

    437m(6分)

  • 初音ヶ丘公園の画像

    公園

    初音ヶ丘公園

    552m(7分)

  • ファミリーマート 小浦権太坂店の画像

    コンビニエンスストア

    ファミリーマート 小浦権太坂店

    614m(8分)

  • 横浜市立権太坂小学校の画像

    小学校

    横浜市立権太坂小学校

    639m(8分)

  • 初音ヶ丘第二公園の画像

    公園

    初音ヶ丘第二公園

    654m(9分)

  • ハックドラッグ権太坂スクエア店の画像

    ドラッグストア

    ハックドラッグ権太坂スクエア店

    910m(12分)

  • そうごう薬局 権太坂スクエア店の画像

    ドラッグストア

    そうごう薬局 権太坂スクエア店

    918m(12分)

  • サミットストア 権太坂スクエア店の画像

    スーパー

    サミットストア 権太坂スクエア店

    1014m(13分)

  • あさみ薬局の画像

    ドラッグストア

    あさみ薬局

    1565m(20分)

近隣の物件

  1. 横浜市保土ケ谷区今井町

    3LDK (84.00㎡)

    3,080万円

  2. 横浜市保土ケ谷区岩井町

    2SLDK (66.93㎡)

    3,500万円

  3. 横浜市保土ケ谷区神戸町

    3LDK (80.48㎡)

    4,290万円

  4. 横浜市保土ケ谷区仏向西

    3LDK (74.19㎡)

    3,199万円

よく見られている物件

  1. 横浜市南区六ツ川1丁目

    5LDK (167.33㎡)

    5,280万円

  2. 横浜市磯子区洋光台4丁目

    2LDK (73.15㎡)

    3,580万円

  3. 大和市中央5丁目

    3LDK (61.26㎡)

    2,480万円

  4. 横浜市緑区長津田4丁目

    3LDK (70.06㎡)

    6,980万円

グランシティ保土ヶ谷【仲介手数料無料】ペット可♪

お気軽にお問い合わせください

LINEからお問い合わせ 無料お問い合わせ

つるハウス(不動産売買・賃貸・仲介・管理)

045-777-2133

10:00~20:00

(休:水曜日)