NEW

横浜市戸塚区深谷町 新築戸建て【仲介手数料無料】カースペース2台

4,580万円

神奈川県横浜市戸塚区深谷町

ブルーライン「下飯田」駅バス4分「アカシア公園入口」停歩1分

相鉄いずみ野線「ゆめが丘」駅バス6分「アカシア公園入口」停歩1分

価格
4,580万円
間取り
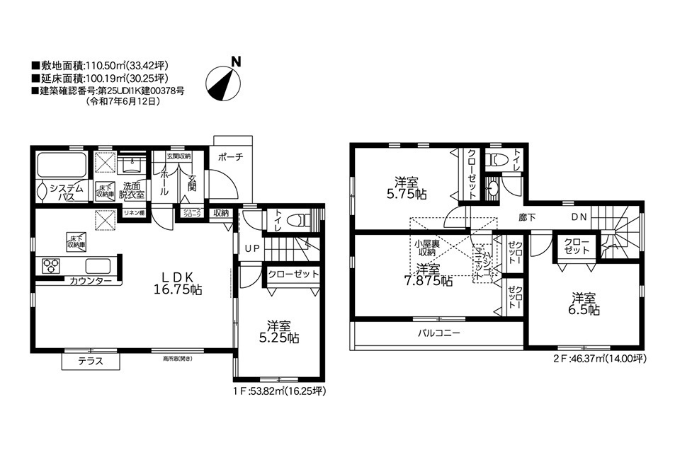
4LDK
土地面積
110.50㎡
所在地
神奈川県横浜市戸塚区深谷町
交通

ブルーライン下飯田」駅 バス4分 「アカシア公園入口」 停歩1分

相鉄いずみ野線ゆめが丘」駅 バス6分 「アカシア公園入口」 停歩1分

建物面積
100.19㎡
築年月
2026年3月(予定)

物件の特徴

  • バストイレ別

  • 室内洗濯機置場

  • TVモニタ付きインターホン

  • 浴室乾燥機

セールスポイント

★仲介手数料無料★広々としたリビングに充実設備のキッチンを備えた4LDK。ご家族内でもそれぞれ車をお持ちな際には必要不可欠な車を2台駐車可能です。建物面積100.19㎡もあるので有効活用しましょう。追い焚き機能付きのお風呂です。住環境を見直しませんか。暮らしの中でも、住居は充実した生活を送るための大きな役割を担っています。不動産を探すなら、当社にお任せください。

ポイント

追焚機能浴室 トイレ2ヶ所 システムキッチン バス トイレ別 カウンターキッチン

担当者のコメント

渡邊 智也

横浜で仲介手数料無料の戸建て・マンション・土地を探すならつるハウスへ!駐車2台可能なので、友達や親戚の方が急に来ても置けます。エコな追焚機能付き浴室がある物件はいかがでしょうか。デザイン性のあるシステムキッチン付きなので、キッチンがお洒落なスペースになっています。快適な環境と機能的な設備のある4,580万円の物件です。不動産購入で失敗しないように、豊富な経験と知識を持つ当社がしっかりとサポートを行います。ご希望の条件がございましたら、当社スタッフにお聞かせください。のお住まい探しに役立つことでしょう。まずはご希望条件をスタッフまでお聞かせ下さい。横浜で住みよい環境を求めている方は、つるハウスにお任せください。たくさんの不動産の中から、お客様に合った戸建て・マンション・土地をご紹介いたします。

基本情報

販売戸数
-
総戸数
1戸
間取り / 詳細
4LDK
向き
-
建物面積(坪数)
100.19㎡(30.3坪)
土地面積(坪数)
110.50㎡(33.42坪)
建ぺい率 /
容積率
60%/200%
築年月
2026年3月(予定)
駐車場 /
月額料金
有(2台) -
土地権利
所有権
土地
(敷金 / 保証金)
- / -
建物構造
木造 / -
傾斜地部分面積
-
路地状敷地
-
私道負担面積
-
セットバック
-
高圧線下面積
-
施工会社
-
用途地域
準住居
地目 / 地勢
- / -
接道状況
-
国土法届出要否
不要
都市計画
市街化区域
総区画数 /
販売区画数
1区画/-
現況
未完成
その他
法令上の制限
-
取引態様
仲介
引渡し
相談
取引条件の
有効期限
2025年11月17日

設備条件

設備条件
  • 新婚さん向け / ファミリー向け / キャンペーン / 仲介手数料無料 / 室内洗濯機置場 / バルコニー / 都市ガス / 公営水道 / 公共下水 / 24時間換気システム / 電気有 / 照明器具付き / 駐車2台可 / 食器洗い乾燥機 / システムキッチン / カウンターキッチン / バス・トイレ別 / 追焚機能浴室 / 浴室乾燥機 / 洗面台 / トイレ2ヶ所 / 床下収納 / TVモニタ付インターホン
設備(その他)
    -

その他

物件番号
96931029
管理コード
-
建築確認番号
第25UDI1K建00378号
情報更新日
2025年11月03日
次回更新予定日
2025年11月17日
備考
横浜で仲介手数料無料の戸建て・マンション・土地を探すならつるハウスへ!

~仲介手数料最大無料 現地ご見学会~
★つるハウスでは高額な「仲介手数料」が無料で対応可能です!仲介手数料について詳しくご説明いたします!
■無料で物件現地をご覧いただき、率直なご感想をいただいております。
■最寄駅や、スーパー、公園、学校等の周辺の施設をお車or徒歩にてご案内させて頂きます。
■未完成の現場であれば、モデルハウスを手配させていただき、ご覧いただけます。
■周辺の販売情報や、過去の成約情報等を基に、比較検討をしていただいております。

~住宅ローンFPコンサルティング~
「変動金利」「固定金利」どちらが良い?
賢い住宅ローンの選び方!
【借入時~10年後~定年時~完済】までの残債額を見ながらのシミュレーション♪
万が一売却する際に損をしない物件選び!?
住宅ローンって払い終えたら実際の総額は??
定年後の返済計画のご提案!!
的確な繰り上げ返済のタイミングと方法とは?
住宅ローン以外のランニングコストを踏まえた上での安心のご予算は?等々。
お客様それぞれの状況をカウンセリングしてご提案させていただいております!
お気軽にお申し付けくださいませ!

※「家が近くなので現地集合が良い」「お自宅までの送迎」⇒対応可能です!!
※「取り急ぎ資料だけ欲しい」のような資料請求だけでも大歓迎です!!

★仲介手数料最大無料のつるハウスでは住宅ローンに関する「漠然とした見えない不安」「将来不安」「定年後の返済計画」等々、多種多様な不安の「見える化」をさせていただいております!是非お気軽にお申し付け下さい!
詳しくは下記「問い合わせをする」「新規会員登録」ボタンよりお気軽にお問い合わせください。

横浜で住みよい環境を求めている方は、つるハウスにお任せください。たくさんの不動産の中から、お客様に合った戸建て・マンション・土地をご紹介いたします。

周辺施設

  • 和泉町都市緑地の画像

    公園

    和泉町都市緑地

    235m(3分)

  • セイジョー 戸塚深谷店の画像

    ドラッグストア

    セイジョー 戸塚深谷店

    322m(5分)

  • ココカラファイン 戸塚深谷店の画像

    ドラッグストア

    ココカラファイン 戸塚深谷店

    347m(5分)

  • セブンイレブン 横浜深谷町店の画像

    コンビニエンスストア

    セブンイレブン 横浜深谷町店

    351m(5分)

  • ユーコープ和泉店の画像

    スーパー

    ユーコープ和泉店

    495m(7分)

  • ユーコープ 和泉店の画像

    スーパー

    ユーコープ 和泉店

    496m(7分)

  • ユーコープ 和泉店の画像

    スーパー

    ユーコープ 和泉店

    497m(7分)

  • ローソン 横浜環4深谷町店の画像

    コンビニエンスストア

    ローソン 横浜環4深谷町店

    497m(7分)

  • 和泉アカシア公園の画像

    公園

    和泉アカシア公園

    545m(7分)

  • 夢庵 戸塚深谷店の画像

    その他

    夢庵 戸塚深谷店

    664m(9分)

  • サンドラッグ 戸塚深谷店の画像

    ドラッグストア

    サンドラッグ 戸塚深谷店

    733m(10分)

  • からやま 戸塚深谷町店の画像

    その他

    からやま 戸塚深谷町店

    766m(10分)

  • SUPER MARKET Tamaya(スーパーマーケットたまや) 深谷店の画像

    スーパー

    SUPER MARKET Tamaya(スーパーマーケットたまや) 深谷店

    860m(11分)

  • たまや深谷店の画像

    スーパー

    たまや深谷店

    860m(11分)

  • 横浜市立深谷小学校の画像

    小学校

    横浜市立深谷小学校

    1040m(13分)

  • ロイヤルホームセンター 戸塚深谷店の画像

    ホームセンター

    ロイヤルホームセンター 戸塚深谷店

    1136m(15分)

  • ローソン ドリームバスターミナル前店の画像

    コンビニエンスストア

    ローソン ドリームバスターミナル前店

    1153m(15分)

支払いシミュレーション

月々の支払額
9.6
購入希望物件価格
万円
頭金
万円
金利
%
返済額(ボーナス1回分)
万円
返済期間

※ボーナスは自動で年2回分で計算されます。

近隣の物件

  1. 横浜市戸塚区汲沢3丁目 新築戸建て【仲介手数料無料】

    横浜市戸塚区汲沢3丁目

    3LDK (63.22㎡)

    3,580万円

  2. 横浜市戸塚区平戸町 新築戸建【仲介手数料無料】カースペース3台

    横浜市戸塚区平戸町

    3LDK (100.20㎡)

    5,580万円

  3. 横浜市戸塚区小雀町 新築戸建て【仲介手数料無料】カースペース2台

    横浜市戸塚区小雀町

    4LDK (97.70㎡)

    4,290万円

  4. 横浜市戸塚区原宿2丁目 新築戸建て【仲介手数料無料】カースペース2台

    横浜市戸塚区原宿2丁目

    4SLDK (110.75㎡)

    4,380万円

横浜市戸塚区深谷町 新築戸建て【仲介手数料無料】カースペース2台

横浜市戸塚区深谷町 新築戸建て【仲介手数料無料】カースペース2台

4,580万円

-

4LDK(100.19㎡)

お気軽にお問い合わせください

LINEからお問い合わせ 無料お問い合わせ

つるハウス(不動産売買・賃貸・仲介・管理)

045-777-2133

10:00~20:00

(休:水曜日)