横浜市中区本牧元町 新築戸建て【仲介手数料無料】

5,780万円

神奈川県横浜市中区本牧元町40-2

京浜東北線「山手」駅バス19分「本牧元町」停歩2分

価格
5,780万円
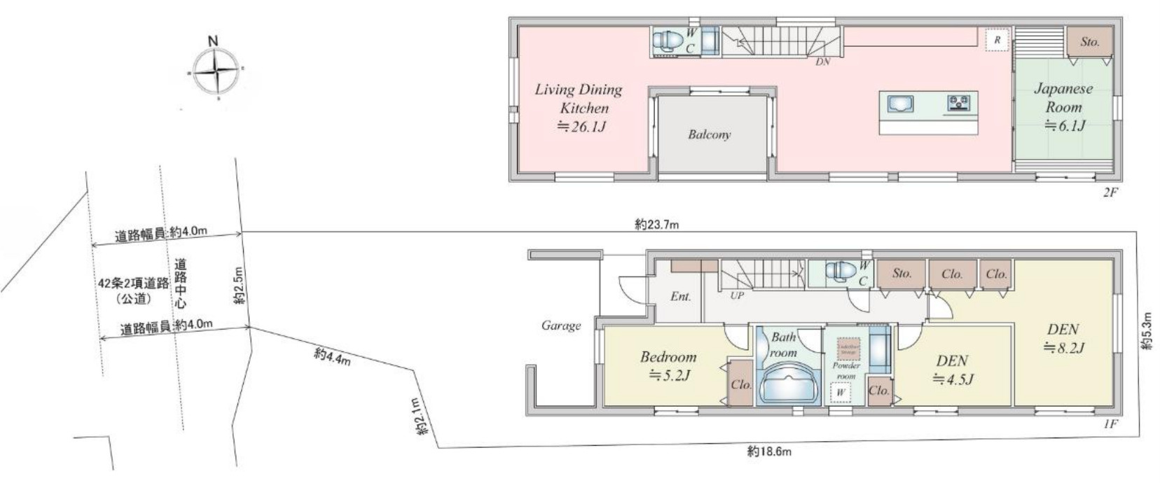
間取り
4LDK
土地面積
96.72㎡
所在地
神奈川県横浜市中区本牧元町40-2
交通

京浜東北線山手」駅 バス19分 「本牧元町」 停歩2分

建物面積
107.23㎡
築年月
2026年4月(予定)

物件の特徴

  • バストイレ別

  • 室内洗濯機置場

  • TVモニタ付きインターホン

  • カウンターキッチン

  • 浴室乾燥機

セールスポイント

★仲介手数料無料★新生活を失敗せず、スタートさせたいならこちらの「横浜市中区本牧元町 新築戸建て【仲介手数料無料】」はいかがでしょうか。多聞院前公園まで289mです。快適な生活を送れる4LDKの物件情報あります。バルコニーをご活用いただけます。当社で不動産を探しませんか。人生に何度とない不動産購入だからこそ、当社にお任せください。数多くの不動産情報を取り扱っております。

ポイント

浴室乾燥機 24時間換気システム バス トイレ別 新婚さん向け トイレ2ヶ所

担当者のコメント

渡邊 智也

横浜で仲介手数料無料の戸建て・マンション・土地を探すならつるハウスへ!こだわりポイント満載の横浜市中区本牧元町 新築戸建て【仲介手数料無料】。多聞院前公園まで289mです。建物面積107.23平米の物件は住み心地が良いと評判です。浴室乾燥機付きの物件なので、浴室乾燥機をつけて湿気を除去すればカビの発生を予防できます。一戸建ての購入は失敗できません。横浜市中区や京浜東北線山手付近で住まい探しをするなら、豊富な知識を有する当社スタッフまでご連絡ください。横浜で住みよい環境を求めている方は、つるハウスにお任せください。たくさんの不動産の中から、お客様に合った戸建て・マンション・土地をご紹介いたします。

基本情報

販売戸数
-
総戸数
-
間取り / 詳細
4LDK
向き
-
建物面積(坪数)
107.23㎡(32.43坪)
土地面積(坪数)
96.72㎡(29.25坪)
建ぺい率 /
容積率
60%/200%
築年月
2026年4月(予定)
駐車場 /
月額料金
有 -
土地権利
所有権
土地
(敷金 / 保証金)
- / -
建物構造
木造 / 2階建
傾斜地部分面積
-
路地状敷地
-
私道負担面積
-
セットバック
-
高圧線下面積
-
施工会社
-
用途地域
第一種住居
地目 / 地勢
- / -
接道状況
-
国土法届出要否
不要
都市計画
市街化区域
総区画数 /
販売区画数
-/-
現況
未完成
その他
法令上の制限
-
取引態様
仲介
引渡し
相談
取引条件の
有効期限
2026年02月20日

設備条件

設備条件
  • 新婚さん向け / ファミリー向け / 仲介手数料無料 / 室内洗濯機置場 / フローリング / バルコニー / 都市ガス / 公営水道 / 公共下水 / 24時間換気システム / 電気有 / 照明器具付き / 食器洗い乾燥機 / システムキッチン / カウンターキッチン / バス・トイレ別 / 追焚機能浴室 / 浴室乾燥機 / 温水洗浄便座 / 洗面台 / トイレ2ヶ所 / TVモニタ付インターホン
設備(その他)
    -

その他

物件番号
100216920
管理コード
-
建築確認番号
第25KAK建確01602号
情報更新日
2026年02月06日
次回更新予定日
2026年02月20日
取扱会社
  • つるハウス(不動産売買・賃貸・仲介・管理)
  • 神奈川県横浜市戸塚区汲沢6丁目8-4 
  • TEL:045-777-2133
  • 神奈川県知事 (2) 第30297号
    解体工事業登録
    神奈川県知事(登‐2)第2378号
    産業廃棄物収集運搬業
    東京都知事第13-00-214877号
    神奈川県知事014-00-214877号
  • (公社)全日本不動産協会 
    (公社)不動産保証協会
    (公社)首都圏不動産公正取引協議会
    (公社)東日本不動産流通機構
    (公社)戸塚法人会
備考
横浜で仲介手数料無料の戸建て・マンション・土地を探すならつるハウスへ!

~仲介手数料最大無料 現地ご見学会~
★つるハウスでは高額な「仲介手数料」が無料で対応可能です!仲介手数料について詳しくご説明いたします!
■無料で物件現地をご覧いただき、率直なご感想をいただいております。
■最寄駅や、スーパー、公園、学校等の周辺の施設をお車or徒歩にてご案内させて頂きます。
■未完成の現場であれば、モデルハウスを手配させていただき、ご覧いただけます。
■周辺の販売情報や、過去の成約情報等を基に、比較検討をしていただいております。

~住宅ローンFPコンサルティング~
「変動金利」「固定金利」どちらが良い?
賢い住宅ローンの選び方!
【借入時~10年後~定年時~完済】までの残債額を見ながらのシミュレーション♪
万が一売却する際に損をしない物件選び!?
住宅ローンって払い終えたら実際の総額は??
定年後の返済計画のご提案!!
的確な繰り上げ返済のタイミングと方法とは?
住宅ローン以外のランニングコストを踏まえた上での安心のご予算は?等々。
お客様それぞれの状況をカウンセリングしてご提案させていただいております!
お気軽にお申し付けくださいませ!

※「家が近くなので現地集合が良い」「お自宅までの送迎」⇒対応可能です!!
※「取り急ぎ資料だけ欲しい」のような資料請求だけでも大歓迎です!!

★仲介手数料最大無料のつるハウスでは住宅ローンに関する「漠然とした見えない不安」「将来不安」「定年後の返済計画」等々、多種多様な不安の「見える化」をさせていただいております!是非お気軽にお申し付け下さい!
詳しくは下記「問い合わせをする」「新規会員登録」ボタンよりお気軽にお問い合わせください。

横浜で住みよい環境を求めている方は、つるハウスにお任せください。たくさんの不動産の中から、お客様に合った戸建て・マンション・土地をご紹介いたします。

横浜市中区本牧元町 新築戸建て【仲介手数料無料】の他の物件

  1. 2SLDK (122.65㎡)

    4,880万円(131.54万円/坪)

  2. D号棟

    2SLDK (117.56㎡)

    4,480万円(125.98万円/坪)

周辺施設

  • 本牧元町南公園の画像

    公園

    本牧元町南公園

    186m(3分)

  • ファミリーマート 本牧大里町店の画像

    コンビニエンスストア

    ファミリーマート 本牧大里町店

    188m(3分)

  • 多聞院前公園の画像

    公園

    多聞院前公園

    289m(4分)

  • ソーシン薬局大里店の画像

    ドラッグストア

    ソーシン薬局大里店

    334m(5分)

  • 横浜市立大鳥中学校の画像

    中学校

    横浜市立大鳥中学校

    551m(7分)

  • セブンイレブン 横浜本牧三渓園店の画像

    コンビニエンスストア

    セブンイレブン 横浜本牧三渓園店

    605m(8分)

  • 横浜市立本牧南小学校の画像

    小学校

    横浜市立本牧南小学校

    613m(8分)

  • ミニストップ 本牧店の画像

    コンビニエンスストア

    ミニストップ 本牧店

    677m(9分)

  • 中古市場タークンの画像

    ディスカウントショップ

    中古市場タークン

    774m(10分)

  • イオン本牧店の画像

    スーパー

    イオン本牧店

    805m(11分)

  • スマイル・ワン ベイタウン本牧店の画像

    スーパー

    スマイル・ワン ベイタウン本牧店

    918m(12分)

  • スマイルワン生鮮館ベイタウン本牧店の画像

    スーパー

    スマイルワン生鮮館ベイタウン本牧店

    993m(13分)

支払いシミュレーション

月々の支払額
9.6
購入希望物件価格
万円
頭金
万円
金利
%
返済額(ボーナス1回分)
万円
返済期間

※ボーナスは自動で年2回分で計算されます。

近隣の物件

  1. 横浜市中区本牧元町 新築戸建て【仲介手数料無料】カースペース2台

    横浜市中区本牧元町

    4LDK (99.62㎡)

    5,580万円

  2. 横浜市中区本郷町3丁目 新築戸建て【仲介手数料無料】

    横浜市中区本郷町3丁目

    3LDK (93.71㎡)

    6,980万円

  3. 横浜市中区豆口台 中古戸建て【仲介手数料無料】カースペース3台

    横浜市中区豆口台

    3SLDK (122.66㎡)

    11,900万円

  4. 横浜市中区上野町1丁目 新築戸建て【仲介手数料無料】

    横浜市中区上野町1丁目

    4LDK (113.54㎡)

    6,980万円

横浜市中区本牧元町 新築戸建て【仲介手数料無料】

横浜市中区本牧元町 新築戸建て【仲介手数料無料】

5,780万円

-

4LDK(107.23㎡)

お気軽にお問い合わせください

LINEからお問い合わせ 無料お問い合わせ

つるハウス(不動産売買・賃貸・仲介・管理)

045-777-2133

10:00~20:00

(休:水曜日)