NEW

横浜市栄区本郷台2丁目 新築戸建て【仲介手数料無料】

6,880万円

神奈川県横浜市栄区本郷台2丁目

根岸線「本郷台」駅徒歩14分

価格
6,880万円
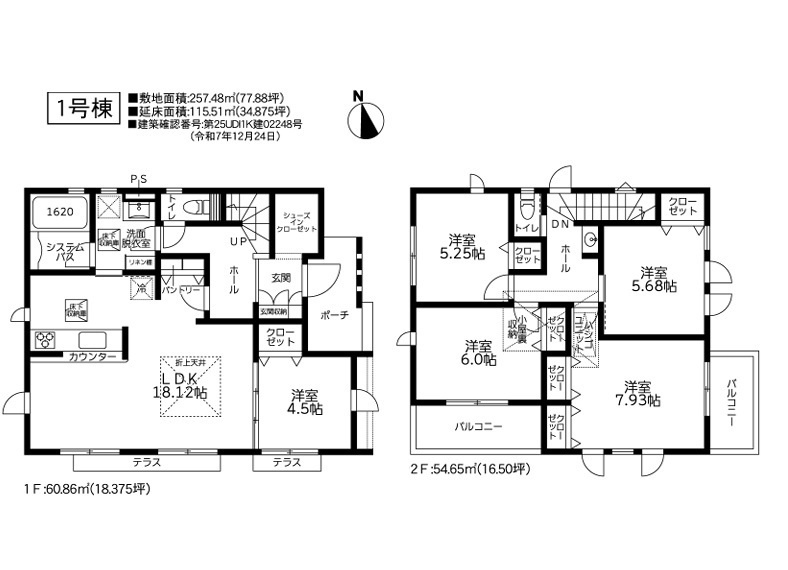
間取り
4LDK
土地面積
180.21㎡
所在地
神奈川県横浜市栄区本郷台2丁目
交通

根岸線本郷台」駅 徒歩14分

建物面積
100.40㎡
築年月
2026年3月(予定)

物件の特徴

  • バストイレ別

  • 室内洗濯機置場

  • TVモニタ付きインターホン

  • カウンターキッチン

  • 浴室乾燥機

セールスポイント

根岸線本郷台駅周辺への引っ越しをお考えなら「横浜市栄区本郷台2丁目 新築戸建て【仲介手数料無料】」。冷めてしまったお風呂も簡単に温めなおすことができる追焚のある浴室です。駅まで徒歩14分の物件です。いつかこんな家に住みたかった、それを叶える6,880万円の物件です。不動産の購入は大きなお買い物です。そこで失敗しないためにも、不動産のプロである当社スタッフまでお気軽にお問い合わせください。

ポイント

24時間換気システム 追焚機能浴室 TVモニタ付インターホン 仲介手数料無料 洗面台

担当者のコメント

江黒 翼

横浜で仲介手数料無料の戸建て・マンション・土地を探すならつるハウスへ!横浜市栄区本郷台2丁目 新築戸建て【仲介手数料無料】:根岸線本郷台駅にも近くて便利。建物面積100.4㎡以上あるので広々と使えます。徒歩14分で駅へのアクセスが可能な物件です。浴室乾燥機付きの物件なので、乾燥機で浴室を乾燥させることができるのでカビの繁殖を防ぐことに役立ちます。人生に何度もない不動産購入だからこそ、こだわりを貫いて探したいですよね。当社では数多くの不動産情報を取り扱っております。あなたの不動産探しのお手伝いをさせてください。横浜で住みよい環境を求めている方は、つるハウスにお任せください。たくさんの不動産の中から、お客様に合った戸建て・マンション・土地をご紹介いたします。

基本情報

販売戸数
-
総戸数
-
間取り / 詳細
4LDK
向き
-
建物面積(坪数)
100.40㎡(30.37坪)
土地面積(坪数)
180.21㎡(54.51坪)
建ぺい率 /
容積率
40%/80%
築年月
2026年3月(予定)
駐車場 / 月額
有 / -
土地権利
所有権
土地
(敷金 / 保証金)
- / -
建物構造
木造 / 2階建
傾斜地部分面積
-
路地状敷地
-
私道負担面積
-
セットバック
-
高圧線下面積
-
施工会社
-
用途地域
第一種低層住居専用
地目 / 地勢
- / -
接道状況
-
国土法届出要否
不要
都市計画
-
総区画数 /
販売区画数
-/-
現況
未完成
その他
法令上の制限
-
取引態様
仲介
引渡し
相談
取引条件の
有効期限
2026年04月23日

設備条件

設備条件
  • 新婚さん向け / ファミリー向け / 仲介手数料無料 / 室内洗濯機置場 / フローリング / バルコニー / 都市ガス / 公営水道 / 公共下水 / 24時間換気システム / 電気有 / 照明器具付き / システムキッチン / カウンターキッチン / バス・トイレ別 / 追焚機能浴室 / 浴室乾燥機 / 洗面台 / トイレ2ヶ所 / TVモニタ付インターホン
設備(その他)
    -

その他

物件番号
100002120
管理コード
-
建築確認番号
第25KAK建確02088号
情報更新日
2026年04月14日
次回更新予定日
2026年04月23日
取扱会社
  • つるハウス(不動産売買・賃貸・仲介・管理)
  • 神奈川県横浜市戸塚区汲沢6丁目8-4 
  • TEL:045-777-2133
  • 神奈川県知事 (2) 第30297号
    解体工事業登録
    神奈川県知事(登‐2)第2378号
    産業廃棄物収集運搬業
    東京都知事第13-00-214877号
    神奈川県知事014-00-214877号
  • (公社)全日本不動産協会 
    (公社)不動産保証協会
    (公社)首都圏不動産公正取引協議会
    (公社)東日本不動産流通機構
    (公社)戸塚法人会
備考
横浜で仲介手数料無料の戸建て・マンション・土地を探すならつるハウスへ!

~仲介手数料最大無料 現地ご見学会~
★つるハウスでは高額な「仲介手数料」が無料で対応可能です!仲介手数料について詳しくご説明いたします!
■無料で物件現地をご覧いただき、率直なご感想をいただいております。
■最寄駅や、スーパー、公園、学校等の周辺の施設をお車or徒歩にてご案内させて頂きます。
■未完成の現場であれば、モデルハウスを手配させていただき、ご覧いただけます。
■周辺の販売情報や、過去の成約情報等を基に、比較検討をしていただいております。

~住宅ローンFPコンサルティング~
「変動金利」「固定金利」どちらが良い?
賢い住宅ローンの選び方!
【借入時~10年後~定年時~完済】までの残債額を見ながらのシミュレーション♪
万が一売却する際に損をしない物件選び!?
住宅ローンって払い終えたら実際の総額は??
定年後の返済計画のご提案!!
的確な繰り上げ返済のタイミングと方法とは?
住宅ローン以外のランニングコストを踏まえた上での安心のご予算は?等々。
お客様それぞれの状況をカウンセリングしてご提案させていただいております!
お気軽にお申し付けくださいませ!

※「家が近くなので現地集合が良い」「お自宅までの送迎」⇒対応可能です!!
※「取り急ぎ資料だけ欲しい」のような資料請求だけでも大歓迎です!!

★仲介手数料最大無料のつるハウスでは住宅ローンに関する「漠然とした見えない不安」「将来不安」「定年後の返済計画」等々、多種多様な不安の「見える化」をさせていただいております!是非お気軽にお申し付け下さい!
詳しくは下記「問い合わせをする」「新規会員登録」ボタンよりお気軽にお問い合わせください。

横浜で住みよい環境を求めている方は、つるハウスにお任せください。たくさんの不動産の中から、お客様に合った戸建て・マンション・土地をご紹介いたします。

周辺施設

  • ビッグ・エー 横浜本郷台店の画像

    スーパー

    ビッグ・エー 横浜本郷台店

    371m(5分)

  • 本郷台中央公園の画像

    公園

    本郷台中央公園

    410m(6分)

  • ビッグ・エー横浜本郷台店の画像

    スーパー

    ビッグ・エー横浜本郷台店

    428m(6分)

  • Big-A 横浜本郷台店の画像

    スーパー

    Big-A 横浜本郷台店

    442m(6分)

  • 本郷台滝ノ前公園の画像

    公園

    本郷台滝ノ前公園

    464m(6分)

  • ローソン 本郷台駅前店の画像

    コンビニエンスストア

    ローソン 本郷台駅前店

    634m(8分)

  • ケンタッキーフライドチキン 本郷台店の画像

    ファーストフード

    ケンタッキーフライドチキン 本郷台店

    749m(10分)

  • マクドナルド 本郷台ピーコックストア店の画像

    ファーストフード

    マクドナルド 本郷台ピーコックストア店

    764m(10分)

  • ドトールコーヒーショップ 本郷台店の画像

    喫茶店・カフェ

    ドトールコーヒーショップ 本郷台店

    801m(11分)

  • T’amoの画像

    喫茶店・カフェ

    T’amo

    831m(11分)

  • 夢庵 横浜本郷台店の画像

    その他

    夢庵 横浜本郷台店

    1175m(15分)

  • モスバーガー本郷台店の画像

    ファーストフード

    モスバーガー本郷台店

    1398m(18分)

  • すき家 横浜笠間店の画像

    その他

    すき家 横浜笠間店

    1533m(20分)

支払いシミュレーション

月々の支払額

※実際の金額と異なる場合があります。

購入希望物件価格
万円
頭金
万円
金利
%
返済額(ボーナス1回分)
万円
返済期間

※ボーナスは自動で年2回分で計算されます。

近隣の物件

  1. 横浜市栄区東上郷町 新築戸建て【仲介手数料無料】カースペース2台

    横浜市栄区東上郷町

    5LDK (115.51㎡)

    5,780万円

  2. 横浜市栄区犬山町 新築戸建て【仲介手数料無料】カースペース2台

    横浜市栄区犬山町

    4LDK (107.64㎡)

    5,480万円

  3. 横浜市栄区飯島町 中古戸建て【仲介手数料無料】

    横浜市栄区飯島町

    4LDK (94.40㎡)

    3,990万円

  4. 横浜市栄区上郷町 中古戸建て【仲介手数料無料】

    横浜市栄区上郷町

    3LDK (91.12㎡)

    2,999万円

よく見られている物件

  1. ☆横浜市栄区庄戸3丁目 新築戸建て/カースペース4台

    横浜市栄区庄戸3丁目

    4LDK (100.19㎡)

    5,190万円

  2. 横浜市南区三春台 中古戸建て【仲介手数料無料】

    横浜市南区三春台

    3LDK (77.83㎡)

    3,580万円

  3. 横浜市港南区笹下3丁目 中古戸建て【仲介手数料無料】

    横浜市港南区笹下3丁目

    4LDK (94.60㎡)

    2,499万円

  4. 横浜市港南区東永谷3丁目 新築戸建て【仲介手数料無料】

    横浜市港南区東永谷3丁目

    3LDK (78.04㎡)

    3,480万円

横浜市栄区本郷台2丁目 新築戸建て【仲介手数料無料】

横浜市栄区本郷台2丁目 新築戸建て【仲介手数料無料】

6,880万円

-

4LDK(100.40㎡)

お気軽にお問い合わせください

LINEからお問い合わせ 無料お問い合わせ

つるハウス(不動産売買・賃貸・仲介・管理)

045-777-2133

10:00~20:00

(休:水曜日)